Zainwestuj,Batorego,usługi.dom,magazyny

Działka (Usługowo-mieszkaniowa) na sprzedaż
715 000,00 PLN , Pow. 1 581 m2
Typ nieruchomości:
Działka
Powierzchnia:
1 581 m2
Typ transakcji:
sprzedaż
Lokalizacja:
Toruń Mokre , Stefana Batorego
Numer oferty:
PRO108753
Cena za m2:
452,25 PLN
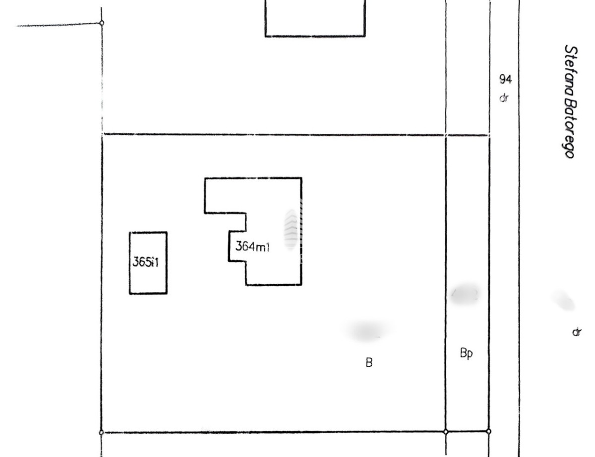
Oferta sprzedaży działek inwestycyjnych (usługowo - mieszkalnych) o łącznej powierzchni 1581m2  położonych w Toruniu przy ul.Batorego.

Cena podlega negocjacji, umów się na prezentację i złóż swoją ofertę.

Działki (178m2 i 1043 m2 na jednej księdze wieczystej). Z dostępem do drogi.
Działka zabudowana murowanym domkiem i budynkiem gospodarczym - w stanie do rozbiórki.
Oznaczenie według wypisu z rejestru gruntów- B - tereny mieszkaniowe, Bp- zurbanizowane tereny niezabudowane w trakcie zabudowy.

Zgodnie z miejscowym planem zagospodarowania działki te znajdują się w granicach obszaru dla którego ustalono przeznaczenie: usługi (w tym usługi kamieniarstwa), zabudowa mieszkaniowa jednorodzinna oraz przeznaczenie dopuszczalne: składy, magazyny, infrastruktura techniczna.

Działka posiada podłączenie do prądu, szambo.
Obecnie trwają pracę podłączania do kanalizacji miejskiej.

W okolicy znajdują się obiekty mieszkalno-magazynowo-handlowo-usługowe.

POLECAM I ZAPRASZAM NA PREZENTACJĘ

Kontakt: Ewelina Fagasińska
tel. 533 318 238; e-mail: e.fagasinska@bnpt.pl
więcej ofert na www.bnpt.pl

Usługa pośrednictwa jest usługą płatną w sytuacji zakupu nieruchomości.
Prezentacje wszystkich nieruchomości są bezpłatne.
Przed prezentacją, za okazaniem dokumentu tożsamości, należy podpisać umowę pośrednictwa.

Przeprowadzę Państwa przez cały proces zakupu oraz zagwarantuję bezpieczeństwo transakcji.

Niniejszy opis ma charakter informacyjny i nie stanowi oferty w rozumieniu Kodeksu Cywilnego.
Wszystkie zdjęcia i filmy oraz opis są własnością biura nieruchomości. Zabrania się kopiowania i wykorzystywania zdjęć, opisu oraz filmów w jakikolwiek sposób.
Nieprawidłowy adres E-mail